top of page
O House
Location: 
Completion: 
Type:
Contractor:
Portland, OR
2022
Renovation
AIG Renovation LLCDavid Wilson
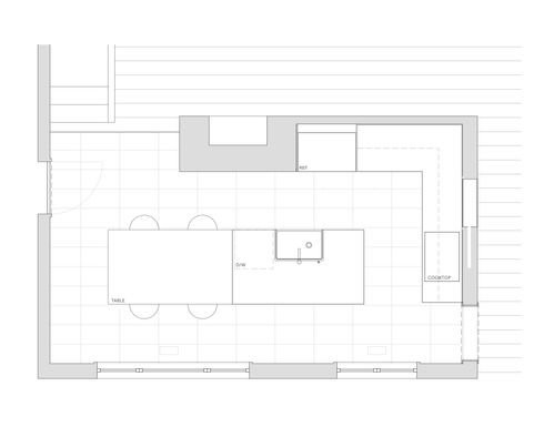
This kitchen and dining space was designed for a family with young children. The existing layout was a U shaped kitchen which was broken by an aisle from the foyer, which made it difficult to use. The new design moves the entry into the kitchen and introduces an island that provides ample storage. This layout separates traffic from the workspace, and opens up the space to be more suitable for a modern lifestyle.


After
Before

bottom of page








